Je précise déjà qu'à moins d'être de la famille, des amis proches ou encore des fadas du bricolage cet article risque de vous faire suer à mort ! Mais comme vous êtes des blogcop's sympas, vous irez quand même jusqu'au bas de la page et laisserez votre avis sur l'épineux problème du jour...
Je n'avais pas réellement mis de photots sur l'avancée des travaux, nous y sommes retournés hier et là j'ai bombardé !
Voilà où on en est :
Au rez, le chauffage au sol est installé (c'est le truc bizarre sur le sol), les cloisons du cellier et du placard de l'entrée sont montées, le plafond est fermé.




Ensuite à l'étage, les cloisons sont aussi montées, on se rend mieux compte des volumes c'est super. Et je peux vous dire qu'ils en ont de la chance nos loulous avec les belles pièces qu'ils vont avoir pour chambre ! Avec de grands placards pour ranger, ranger et encore ranger ! Youpi !











Voilà pour la petite visite guidée, j'espère que ça vous a plu et que vous avez pu vous repérer un peu.
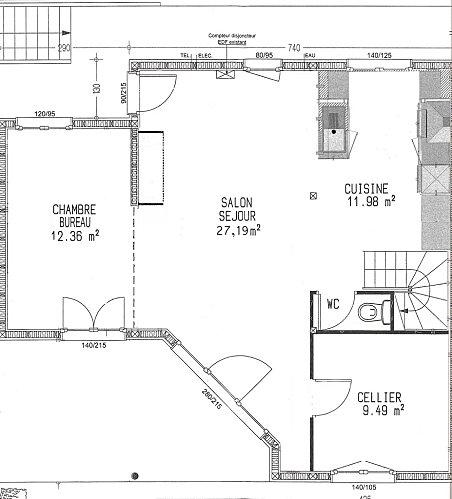
Maintenant je vais faire appel à votre aide, on se pose encore des questions uant à l'ammeublement du rez de chaussée. Voici comment nous voulions au départ le meubler :

Je précise que les meubles ne sont pas vraiment à l'échelle mais ça donne une idée du problème soulevé: on ne peut plus circuler comme ça ! En effet la table est très imposante (2m x 1 m sans compter les chaises qui vont autour) et si le canapé permet d'apprécier la baie vitrée, on ne peut pas vraiment tourner autour !
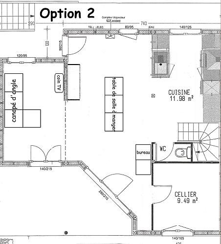
Après concertation, voici la seconde option:

L'avantage c'est que l'espace est vraiment épuré et que notre salon ressemble plus à un petit cocon douillet comme ça. Le soucis c'est que nous perdons le coté "chambre d'amis".
Alors qu'en pensez-vous ? A vos claviers !
Par Sweet mama - Publié dans : Notre nouveau chez nous - Communauté : Nanas...mais mamans aussi!Ecrire un commentaire 1 - Voir le commentaire - Voir les 1 commentaires - Partager Précédent : Quand le printemps débarque. Retour à l'accueil
