Un nouvel établissement prépare sa grande arrivée au centre-ville de Montréal, mais pas n'importe lequel.
• Lire aussi: Un café-bar trop mignon pour faire de l'escalade à Bromont
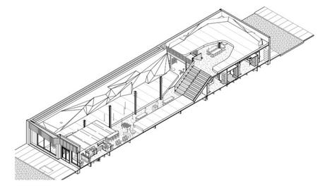
C’est un café-bar pas comme les autres où les clients pourront monter, ce qui se déroulera au cours des prochains mois dans un local abandonné du Main: l’ancien "peep show".
courtoisie
C'est donc à quelques pas de la station de métro Saint-Laurent que les passionnés d'escalade peuvent se retrouver pour pratiquer leur sport favori sur plus de 4 000 pieds carrés de murs d'escalade. Le Café Bloc sera également un lieu où les gens pourront étudier, travailler ou se détendre avec un café à la main ou même une bière.
courtoisie
Café Bloc proposera une sélection de bières de microbrasseries en rotation et un menu simple, santé et réconfortant. Une adresse à ajouter à votre liste de lieux pour vos 5 à 7 collègues, si vous travaillez dans la région.

courtoisie
Le café-bar devrait ouvrir au début de 2020. Dès que le temps le permettra, le Café Bloc inaugurera une terrasse verte sur le toit avec des hamacs et slacklines. L'équipe derrière le projet promet une vue incroyable sur le centre-ville que vous pourrez admirer avec un verre à la main.
En bref, une nouvelle adresse à surveiller!
Bloc de café
1209-1211, boul. Saint-Laurent
*Photo de couverture: Instagram @backboneboulder
&version;&appId;&autoLogAppEvents;
il existe plusieurs raisons pour lesquelles vous devriez brasser votre propre bière. Pour la plupart des brasseurs amateur, la principale motivation est la note individuelle d’ une cervoise. Ce qu’il y a de bien : avec quelques appareils électroménagers ou du matériel de brassage de notre boutique de brasserie de loisirs, vous pouvez transformer votre cave à la maison en une petite brasserie de ménage. Vous pourrez ensuite l’essayer à votre guise et brasser vous-même la bière parfaite. Pour une touche individuelle, il suffit d’essayer différentes substances brassicoles, peut-être un certain type de houblon ou de levure. Cela dépend de vos goûts personnels lors du brassage d’une boisson maltée. Une fois que vous avez trouvé le mélange parfait, vous pouvez toujours vous réapprovisionner rapidement et facilement dans notre boutique de brassage en ligne. Une bière brassée à la maison est aussi un excellent cadeau personnel.
Pour les débutants en tant que brasseurs amateurs, les sets de brassage de bière sont la meilleure solution. il faut combinaisons qui contiennent tous les composants nécessaires au processus de brassage. Pour ainsi dire tout ce qui est important pour brasser de la bière en un seul set ! Cela signifie que le brassage d’ une cervoise ne prend même pas une demi-heure à préparer. Le moût produit fermente ensuite pendant une semaine dans le fermenteur. La bière est ensuite mise en bouteille par le brasseur. Il n’a jamais été aussi facile de brasser de la bière soi-même. Selon le type, la bière doit ensuite fermenter pendant six à douze semaines supplémentaires. Après cette période de fermentation, vous pouvez boire à votre bière finie et la déguster entre amis. Préparer sa propre bière est un jeu d’enfant avec les kits de démarrage et est abordable pour tout le monde.
Si vous décidez de commencer à brasser d’une boisson maltée , vous avez absolument besoin de l’équipement nécessaire. La partie la plus importante de l’équipement de base pour votre propre brasserie de bière est un récipient de fermentation avec des tubes de fermentation. Il est inclus dans chacun de nos coffrets d’entrée, professionnels et cadeaux, mais peut également être acheté séparément si nécessaire. Nos kits de bière comprennent également des instructions et les ingrédients nécessaires pour brasser votre propre bière. Encore plus de plaisir et d’excitation vient quand vous achetez tous les articles qu’il vous faut pour faire votre bière, comme le houblon ou la levure, individuellement et de développer votre propre ratio de mélange. De cette façon, vous pouvez brasser votre propre bière et trouver votre propre goût.
Si vous voulez brasser une bière vous-même et trouver votre propre mélange, vous devriez prévoir un petit peu plus de temps. Un week-end pour préparer la bière appartient au passé. Le résultat vous récompensera pour vos efforts. Vous avez ainsi l’occasion d’élaborer de fines nuances gustatives avec votre bière. En Allemagne, vous pouvez brasser jusqu’à 200 litres de bière par an en tant que brasseur amateur. Toute quantité supplémentaire sera taxée avec de petits montants de cents. Il est donc nécessaire de tenir un livre de brassage dans lequel toutes les activités et les quantités de bière sont documentées. De plus, vous devez déclarer votre brasserie pour la bière à la douane à domicile. Bien entendu, vous pouvez également noter et rassembler vos propres recettes dans votre livre de brassage.
Vous trouverez tous les articles et produits nécessaires pour votre bière dans notre magasin. Que ce soit comme set de brassage de bière pour débutants ou comme ingrédient unique pour un moût parfait. de vous avez absolument raison. Si vous manquez quelque chose en brassant votre propre bière ou si vous n’êtes pas certain des recettes, pensez à nous contacter. Vous pouvez également vous inscrire pour recevoir des conseils dans le forum. Là, vous avez la possibilité d’échanger des expériences et des recettes avec d’autres brasseurs amateurs. Les questions concernant les produits, le processus de fermentation et la commande seront répondues soit par nous, soit par la communauté. Grâce à cet échange, vous pouvez brasser votre propre bière et vous reposer sur la richesse de l’expérience de nombreux brasseurs à domicile.
Que vous soyez brasseur amateur, brasseur professionnel ou maître brasseur, nous voulons que vous soyez entièrement satisfait. Vous avez donc un mois pour retourner votre bière. Si vous n’aimez pas l’un de nos produits, nous vous rembourserons le prix d’achat après le retour. Cependant, nous sommes confiants que nos produits de brassage maison sauront vous convaincre. Brasser de la bière chez soi est maintenant très facile, avec nos sets et instructions utiles. Essayez-le, créez votre propre bière et vos toasts avec vos amis. Brasser sa propre bière n’est pas seulement amusant, c’est aussi une excellente façon de passer d’innombrables soirées sociales.


